


三维工艺,三大产品


SVMAN-M三维机加专家
SVMAN-M 应用价值

场景1:三维设计模型贯通——异构CAD模型解析
SVMAN-M可以兼容主流CAD数据格式,在保证数据结构完整性的前提下,提取设计数据的属性信息、三维标注信息,完成设计数据和工艺数据的有效衔接。同时,SVMAN-M提供快速处理模型功能,协助工艺工程师快速对设计模型进行调整,避免了修改数据时利用原有三维软件造成的流程及效率问题,提升效率并确保工艺设计流程的完整性。

SVMAN-M通过简单直观的人机交互方式、三维可视化的操作方法,智能识别工艺模型特征进行特征方法链推理,利用识别工艺信息快速定义工序,借助识别的工艺参数辅助工序模型的生成,从而高效完成三维机加工艺规划。

场景3:工艺参考设计
SVMAN-M通过有效方式如粗糙度、公差等级等信息完成工艺模型的成组分类,利用原有典型工艺及特征信息关联对比,智能生成工艺方案,实现现有工艺模型对典型工艺的快速复用,高效完成相似零件工艺方案的快速设计,提升工艺设计效率。

场景4:装夹仿真

场景5:工序模型刀轨仿真
将工序模型在CAM模块中打开展示,通过操作界面的快速设置构建满足加工要求的刀具轨迹,并可进行仿真模拟刀具轨迹,借助可视化的方式判断工艺设计与仿真加工之间的差距,进而指导工艺设计流程,降低因实际加工造成的生产成本。


SVMAN-A三维装配大师
SVMAN-A 应用价值
场景1:数字样机工艺会签

场景2:三维装配工艺规划
三维装配工艺规划基于三维模型及装配工艺BOM实现工艺快速规划和分工,实现三维资源管理、工厂关联等辅助装配工艺的设计规划。装配工艺规划阶段,在三维环境下进行人机交互式工艺规划,定义工序工步,工序配套件BOM的分配和资源的分配。采用消耗式BOM或模型对装配工艺进行可视化组件分配,实现自动检测BOM中已分配使用的零件及数量,避免错装漏装。

场景3:虚拟装配仿真

场景4:虚拟布线仿真

场景5:现场3D作业指导


SVMAN-Q 质检助手
SVMAN-Q 应用价值
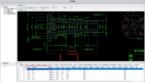
场景1:检验数据自动抽取
三维模型、二维图纸的尺寸自动解析,提取设计要求、公差要求等,生成结构化数据表,省去人工手动填录的时间,自动抽取检验要素,较人工抽取效率提升10倍以上,准确率可达到100%。


场景2:尺寸智能分析

场景3:在线实测填报

场景4:实测数据统计分析&质量追溯

Copyright © 2016-2025,www.jx3ds.com,All rights reserved版权所有 © 杭州聚信同创科技有限公司 未经许可 严禁复制
杭州聚信同创科技有限公司
联系地址:杭州市上城区同协金座20幢1205室
联系电话:13634185857
联系邮箱:chenjian@jx3ds.com
研发中心:济南市高新开发区丁豪广场7号楼 709室
联系邮箱:zlm@jx3ds.com